磁性液位变送器

概 述
UHC-CZ 系列磁致伸缩液位变送器为我公司开发的模块组装式液位变送器,它提供高速、可靠和精确的数据处理和通讯。UHC-CZ 系列液位变送器提供模拟输出4-20mA和数字量RS485 输 出。UHC-CZ 系列液位传感器为非接触式,永不磨损。具有高分辨率、高精度、高稳定性、高可 靠性、响应时间快、工作寿命长等优点。传感器不用重新标定,也不用定期维护。UHC-CZ 系列 液位传感器的防爆产品严格按照GB3836.1-2000《 爆炸性气体环境用电气设备通用要求》、GB3836.2-2000《 爆炸性气体环境用电气设备隔爆型“d” 》GB3836.4-2000《 爆炸性气体环 境用电气设备本质安全型“i” 》的要求研制、设计、制造。并取得国家仪器仪表防爆安全监督检验站颁发的防爆合格证。防爆标志:ExibⅡcT6Gb。
工作原理
磁致伸缩变送器电子头中的脉冲发生器首先在磁致伸缩波导丝上施加一个电脉充信号,此 电脉充同时伴随一个环型磁场,以光速沿波导丝向下传递。当该环形磁场遇到浮子中磁铁产生的 纵向磁场时,将与之进行矢量叠加,形成一个螺旋形的磁场。根据维德曼效应,当合成磁场发生 变化形成螺旋形磁场时,波导丝会产生沿螺旋形磁场的伸缩变形,导致波导丝产生扭曲变形,从 而激发扭转波(或返回脉冲)。该扭转波沿波导丝以超声波的形式回传到传感头中的感应线圈 时,将转换成横向应力。根据维拉里效应,当波导丝发生物理变形时,会在波导丝内引起磁场强 度的变化,此时,通过传感器线圈的磁通将发生变化,从而在传感器线圈两端将产生一个可以被 检测到的感应电动势。超声扭转波的传播速度为一常数(2838m/s左右)。因此,从发射电流脉 冲的一刻到检测到感应电动势的时间差乘以这个固定速度,便能精确地算出磁铁(浮子)的位置。
产品特点
◆非接触式测量
◆使用寿命长
◆具有反向极性保护功能
◆结构精巧、环境适应性强
◆可监测带压或不带压液罐的液位
◆安装方便
产品应用
◆工业现场液位测量与控制
◆食品饮料液罐控制
◆化工过程液位控制
◆饮用水和污水处理等
◆高精度、高稳定性、高可靠性
◆多种信号输出方式选择
◆防雷击、防射频干扰
◆不需定期重标和维护
◆隔爆、防腐(可选)
◆油罐液位测量
◆大坝水位监控
◆制药罐液位控制
主要技术参数
| 测量数据 | 液 位 | 量程范围 | 
 80~5000mm(可根据用 户要求定制)  | 
| 非线性误差 | 
 ≤0.05%FS量程 300mm以下最大误差 0.1mm  | 
重复性误差 | ≤0.01FS | 
| 分辨率 | 16位D/A转换 | 迟 滞 | ≤0.0029%FS | 
| 精 度 | 0.01%F.S | ||
| 温 漂 | ±50ppm/℃ | 工作电压 | +11VDC~+36VDC | 
| 工作电流 | 
 ≤15mA(随量程的变化 而增减)  | 
工作温度 | -50~+300℃ | 
| 负载特性 | 电流输出时最大负载电 阻600Ω | 输出形式 | 4~20mADC 、RS485、 HART | 
| 工作压力 | ≤10MPa(视介质密度 及浮子而定 | 电子仓外壳材料 | 304 | 
| 测杆材料 | 304、316L、聚四氟 | 连接形式 | M18x1.5 M20x1.5 3/4-16UNF(英制) | 
| 引线方式 | 直出线(标准长度2.8 米屏蔽电缆)侧出线 | 外壳防护等级 | IP65 | 
| 模拟信号输出接线方式 | 
 电源正(红)、电源地 (黑)  | 
数字信号输出接线方式 | 电源正(红)、电源地(黑)、 RS485A黄)、RS485B(绿) | 


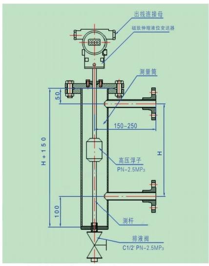
UHC-CZ 侧装捆绑式安装示意图 UHC-CZ 带测量筒插入式安装示意图

带数显型 高温型 防腐型 捆绑式
磁致伸缩液位计 磁致伸缩液位计 磁致伸缩液位计 磁致伸缩液位
